BTM

Haedo, Provincia de Buenos Aires

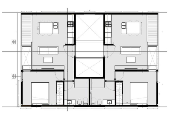
SEMIPISOS

2 AMBIENTES

39M2 CUBIERTOS

3M2 SEMICUB.

42M2 TOTALES

Ubicacion estrategica, sobre el Boulevard de Av Presidente Peron en Haedo, donde circula el metrobus y hay un gran parque lineal y a 500mts de Acceso Oeste. Es un conjunto residencial de 14 unidades, la misma tipologia al frente y contrafrente, con semipisos de 2 ambientes de 42m2. La zona se encuenra en pleno crecimiento, por el desarrollo que tuvo los ultimos años con el metrobus, iluminacion y parque lineal. Las unidades estan realizadas con materiales de primera linea y equipadas en su totalidad. Cuenta con 2 terraza de uso común, cada una con su parrilla y equipamiento para podes disfrutarlas

Caracterísiticas

CARPINTERÍAS / ALUMINIO CON DVH
COCINA / COMPLETA CON ISLA FUNCIONAL
PISOS / PORCELANATO SÍMIL MADERA
GRIFERÍAS / FV
CLIMATIZACIÓN / AIRE ACONDICIONADO
CALEFACCIÓN / SISTEMA DE RADIADORES
AMENITIES / TERRAZA CON PARRILLA
FACHADA / ALUMINIO COMPUESTO

BTM

Av Pte Perón 2230, Haedo, Provincia de Buenos Aires