MI 725

Castelar, Provincia de Buenos Aires

PISOS COMPLETOS

3 AMBIENTES

CON COCHERA

102M CUBIERTOS

86M2 DE JARDÍN

188M2 TOTALES

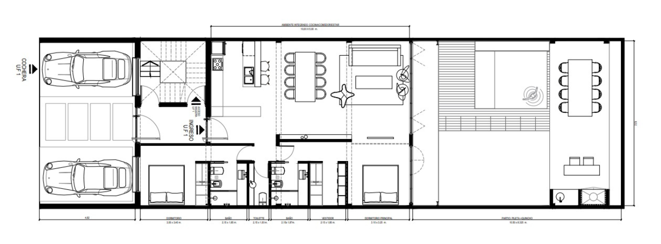
Partiendo de la utilización de una ex fabrica textil en desuso, replanteamos su función, conformando dos unidades tipo loft con una importante amplitud, ambas distribuidas en 1 planta, generando así espacialidades que hoy son escasas, como por ejemplo techos altos, ancho del total del terreno por unidad, jardín privado para la unidad en PB, terraza privada para la unidad en PA y cochera. Cada unidad cuenta con 110m2 cubiertos, con living/comedor, toilette y 2 dormitorios con baño en suite. En su exterior tendrá 70m2 descubiertos con parrilla y la posibilidad de agregar una pérgola y pileta/jacuzzi

Caracterísiticas

VENTILACIÓN / CRUZADA
FLEXIBILIDAD / CONVERTIBLE DE 2 A 3 AMBIENTES
PISOS / PVC SÍMIL MADERA
CARIPINTERÍAS / ALUMINIO CON DVH
ESPACIO EXTERIOR / JARDÍN O TERRAZA
CLIMATIZACIÓN / PREINSTALACIÓN DE A.A.
CALEFACCIÓN / SISTEMA DE RADIADORES
FACHADA / LADRILLO VISTO

MI 725

Martin Irigoyen 725, Castelar, Provincia de Buenos Aires